ロフトコーポレーション

不動産のことなら
株式会社ロフトコーポレーション

Instagram Facebook LINE
トップ 売買物件一覧 セイラタウン 3LDK+FREEROOMプラン

セイラタウン 3LDK+FREEROOMプラン

この物件の空き状況確認・見学お問い合わせ
価格 /
35,460,000円
  • 住所 / 熊本市東区下江津3丁目
  • 間取り / 3K/3DK/3LDK

おすすめポイント

暮らしやすい街で叶える、心地よい暮らし

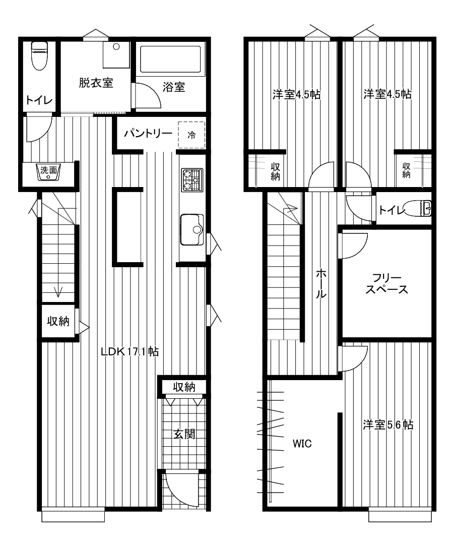
・LDK17.1帖の開放感あるリビングや、多彩な使い方ができるフリールーム、全居室収納の充実したファミリー向け新築住宅です。
・独立洗面台完備で毎日の身支度も快適。
・主寝室(5.6帖)はウォークインクローゼット付きで、衣類や季節用品もスッキリ収納。
・子供部屋2部屋(各4.5帖)は、お子様個室や趣味部屋にもぴったりのサイズ。
・フリールームはテレワーク・書斎・ファミリークローゼットなど使い方自由。家族構成やライフスタイルの変化にも柔軟に対応できます。
・小学校徒歩3分、バス停や買い物・医療・公園も徒歩圏内で、子育て環境・利便性ともに抜群

マップ

周辺環境

・画図小学校まで徒歩3分
・セブン-イレブン 熊本セイラタウン店まで徒歩6分
・麺処てしお 本店まで徒歩8分
・マルショク江津店まで徒歩11分
・中央仁クリニックまで徒歩2分
・江津セイラ西公園まで徒歩2分
・画図地域コミュニティセンターまで徒歩3分

物件詳細

物件名 セイラタウン 3LDK+FREEROOMプラン
住所 熊本市東区下江津3丁目
バス停からの徒歩時間 / セイラタウン南バス停まで徒歩7分 /(m)
駐車場備考 / 駐車場2台可
周辺小学校名 / 画図小学校
周辺中学校名 / 湖東中学校
賃料・価格 / 35,460,000円

この物件について

・COM-HAUS建築
・3LDK+FREEROOMプラン

地目 宅地
用途土地 第一種低層住宅専用
都市計画 市街化区域
地勢 平坦
面積計測方式 公簿
土地(区画)面積 127.51㎡
建ぺい率 40%
容積率 80%
土地権利 所有権
接道方向_1
物件接道間口_1 5.74
接道種別_1 公道
接道幅員_1 6
建物構造 木造
建物面積・専有面積 95.37㎡
建物階数(地上) 2
新築・未入居 新築・未入居
現況 空(土地の場合:更地)
引渡/入居時期 相談
取引態様 一般
部屋条件 建築条件付
キッチン システムキッチン
水回り シャワー, バス・トイレ別, 温水洗浄便座 
収納など W.INクローゼット, 室内洗濯機置き場
水道ガス 公営水道, 排水下水
間取部屋数 3LDK
間取1 LDK 17.1
間取2 洋室 5.6
間取3 洋室 4.5
間取4 洋室 4.5
部屋階数 2
間取り内訳 3K/3DK/3LDK
部屋・建物向き

関連物件 VIEW MORE

その他物件検索

条件検索
エリア
間取り
価格帯 円~

この物件についてのお問い合わせ

    お問い合わせ種別 *

    件名 *

    内見希望時間

    お名前 *

    フリガナ *

    メールアドレス *

    電話番号

    ご住所

    お問い合わせ内容 *

    プライバシー同意 *


    個人情報を取扱うにあたり、当サイトおよび運営者は、管理および利用について適用される法令を遵守し、個人情報の漏洩、紛失、改ざん、破壊、個人情報への不正アクセスなどの防止のため適切な予防および是正措置を講じ、個人情報保護の確実な履行に務めます。

    【利用目的】

    お預かりした個人情報は、①お問い合わせに対する回答を行うため、②弊社の商品、サービスのご案内のための2点においてのみ使用させていただきます。

    【免責事項】

    当サイトでは、以下の場合を除き、お客様本人の許可なく第三者に個人情報を開示することはございません。

    1.国の機関若しくは地方公共団体又はその委託を受けたものが法令の定める事務を遂行することに対して協力する必要がある場合で、お客様本人の同意を得ることによりその事務の遂行に支障を及ぼす恐れがある場合

    2.裁判所・検察庁・警察・弁護士会・消費者センター又はこれらに準じた権限を有する機関から、個人情報についての開示を求められた場合

    3.お客様本人から明示的に第三者への開示又は提供を求められた場合

    4.法令により開示又は提供が許容されている場合

    【個人情報の取り扱いについて】

    本プライバシーポリシーは、必要に応じて見直しを行い、適宜改善を行います。