南区御幸西2丁目 新築戸建 4号棟
- 住所 / 熊本市南区御幸西2丁目
- 間取り / 4K/4DK/4LDK
おすすめポイント
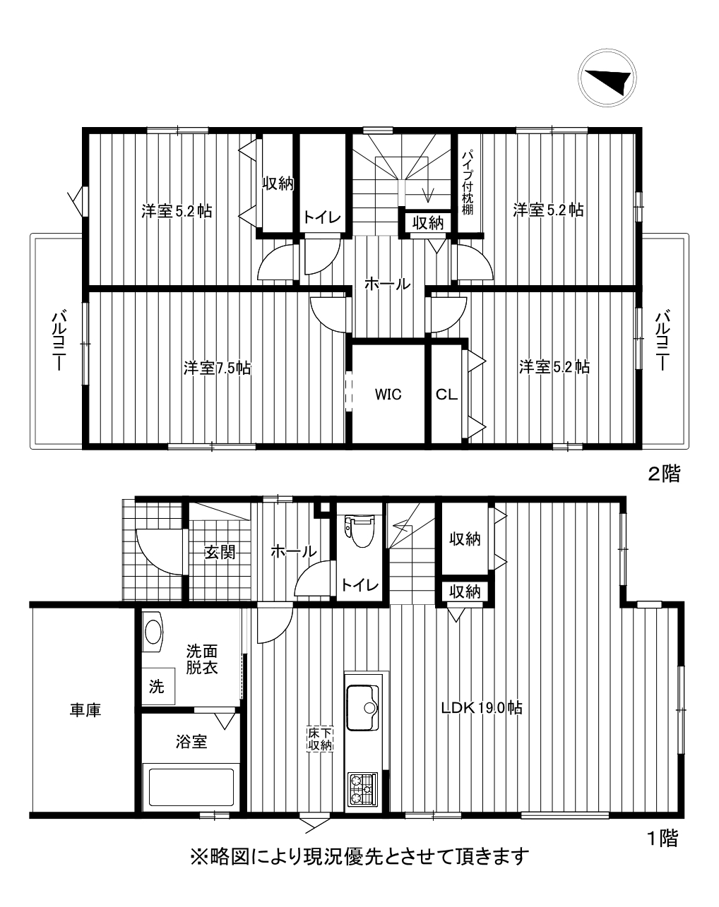
陽光あふれる19畳LDKで家族の笑顔が広がる暮らし!
・19畳の南向き明るいLDKは家族が自然と集まる開放空間。リビング収納とリビング階段で暮らしやすさも充実!
・2階には主寝室7.5帖ウォークインクローゼット付き、洋室3部屋は5.2帖ずつで使い勝手抜群です
・2面バルコニーとホール収納もあり、ゆとりある生活設計となっています
・LDKには電動シャッター付き。リモコン操作で簡単に開閉できるため、毎日の開閉がラクで負担になりにくい!
マップ
周辺環境
・ドラッグストアコスモス 御幸笛田店まで290m・セブン-イレブン 熊本御幸笛田店まで180m
・御幸郵便局まで750m
・御幸病院まで650m
・熊本市立御幸小学校まで1600m
・熊本市立託麻中学校まで2200m
物件詳細
| 物件名 | 南区御幸西2丁目 新築戸建 4号棟 |
|---|---|
| 住所 | 熊本市南区御幸西2丁目 |
| バス停からの徒歩時間 / | 西無田バス停まで徒歩7分 /(m) |
| 駐車場備考 / | ・駐車場2台可能 |
| 周辺小学校名 / | 御幸小学校 |
| 周辺中学校名 / | 託麻中学校 |
| 賃料・価格 / | 33,980,000円 |
|---|
| 地目 | 宅地 |
|---|---|
| 用途土地 | 第二種中高層住宅専用 |
| 都市計画 | 市街化区域 |
| 地勢 | 平坦 |
| 面積計測方式 | 公簿 |
| 土地(区画)面積 | 111.03㎡ |
| セットバック | 有 |
| 建ぺい率 | 60% |
| 容積率 | 200% |
| 土地権利 | 所有権 |
| 接道方向_1 | 北 |
| 接道種別_1 | 公道 |
| 接道幅員_1 | 4.0 |
| 建物階数(地上) | 2 |
|---|---|
| 築年数 | 2025/08 |
| 新築・未入居 | 新築・未入居 |
| 現況 | 空(土地の場合:更地) |
| 引渡/入居時期 | 即時 |
| 取引態様 | 一般 |
| 部屋条件 | 未入居 |
|---|---|
| キッチン | ガスコンロ, 三口コンロ, システムキッチン, カウンターキッチン |
| 水回り | 給湯, 追い焚き, 洗髪洗面化粧台, シャワー, 浴室乾燥機, バス・トイレ別, 温水洗浄便座 |
| 収納など | 床下収納, W.INクローゼット, 室内洗濯機置き場 |
| セキュリティ | TVドアホン |
| 水道ガス | プロパンガス, 公営水道, 排水下水 |
| その他設備 | 駐車場有, バルコニー, フローリング, 24時間換気システム |
| 間取部屋数 | 4LDK |
|---|---|
| 間取1 | LDK 19 |
| 間取2 | 洋室 7.5 |
| 間取3 | 洋室 5.2 |
| 間取4 | 洋室 5.2 |
| 間取5 | 洋室 5.2 |
| 間取り内訳 | 4K/4DK/4LDK |
| 部屋・建物向き | 南 |
関連物件
VIEW MORE
-
戸建て
御船町木倉 新築平屋建
価格 /35,980,000円
物件名 /御船町木倉 新築平屋建
住所 /上益城郡御船町木倉
間取り / 4LDK
-
戸建て
御船町木倉 ガレージ付き2階建 新築戸建
価格 /36,980,000円
物件名 /御船町木倉 ガレージ付き2階建 新築戸建
住所 /上益城郡御船町木倉
間取り / 3LDK
-
戸建て
東区新外3丁目1期1号棟
価格 /27,980,000円
物件名 /東区新外3丁目1期1号棟
住所 /熊本市東区新外3丁目
間取り / 4LDK
-
戸建て
御船町木倉 新築戸建 3号棟
価格 /31,980,000円
物件名 /御船町木倉 新築戸建 3号棟
住所 /上益城郡御船町木倉
間取り / 4LDK
-
戸建て
御船町木倉 新築戸建 24号棟
価格 /32,980,000円
物件名 /御船町木倉 新築戸建 24号棟
住所 /上益城郡御船町木倉
間取り / 4LDK
-
戸建て
南区富合町大町3期 1号棟
価格 /23,980,000円
物件名 /南区富合町大町3期 1号棟
住所 /熊本市南区富合町大町
間取り / 4LDK