南区良町3丁目 中古戸建
- 住所 / 熊本市南区良町3丁目
- 面積 / 139.20㎡
おすすめポイント
サンルームで毎日ぽかぽか♪、家族みんながのびのび暮らせる良町3丁目の中古戸建!
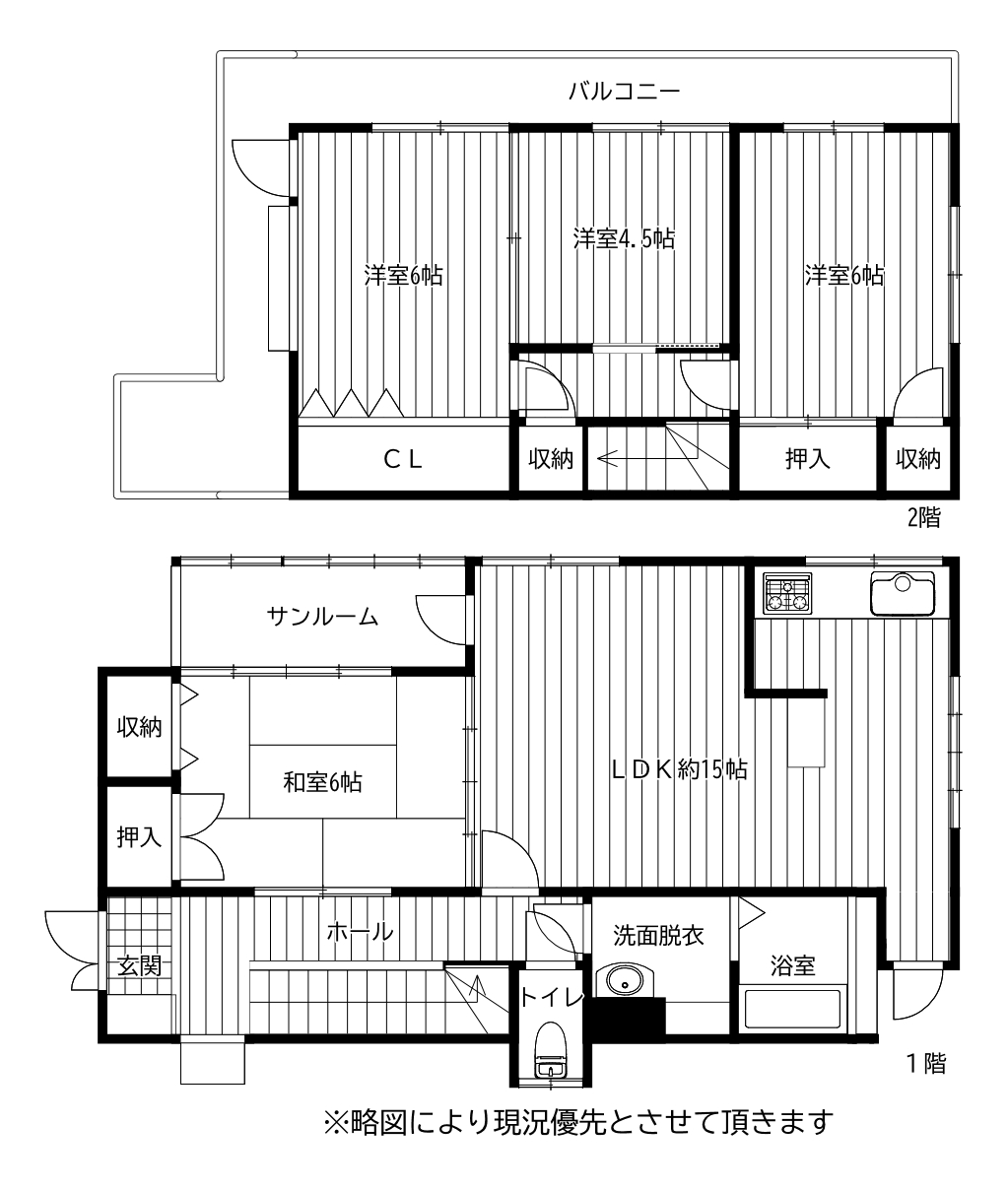
・4LDK+サンルームの間取りで、ファミリーにちょうど良いサイズ感です
・1階は約15帖のLDKと6帖和室が続き間になっており、扉を開ければ広々としたくつろぎ空間として使えます
・和室横にはサンルームがあり、天候を気にせず洗濯物が干せるほか、子どもの遊び場や趣味スペースとしても大活躍
・2階は洋室6帖が2部屋、洋室4.5帖が1部屋の3部屋構成で、家族それぞれの個室を確保しやすい間取りです
・屋根付きバルコニーが広がり、急な雨の日も安心して洗濯物を干せます。
・南区良町エリアは交通アクセスも良く、通勤・通学や週末のお出かけにも便利なロケーションです
マップ
周辺環境
・セブン-イレブン 熊本良町2丁目店まで約700m・ドラッグストアコスモス 田井島店まで約1,000m
・マックスバリュ 御幸笛田店まで約1,200m
・熊本田迎郵便局まで約700m
・熊本市立田迎南小学校まで約1,000m
・熊本市立託麻中学校まで約2,000m
物件詳細
| 物件名 | 南区良町3丁目 中古戸建 |
|---|---|
| 住所 | 熊本市南区良町3丁目 |
| バス停からの徒歩時間 / | 良町まで徒歩10分 /(m) |
| 駐車場備考 / | 駐車場2台可(車種による) |
| 周辺小学校名 / | 田迎南小学校 |
| 周辺中学校名 / | 託麻中学校 |
| 賃料・価格 / | 12,000,000円 |
|---|
この物件について
・空家バンク登録物件です
・利用できる制度などはお気軽にお問合せ下さい
| 地目 | 宅地 |
|---|---|
| 用途土地 | 第一種中高層住宅専用 |
| 都市計画 | 市街化区域 |
| 地勢 | 平坦 |
| 面積計測方式 | 公簿 |
| 土地(区画)面積 | 139.20㎡ |
| 私道負担面積 | 4分の2㎡ |
| 建ぺい率 | 60% |
| 容積率 | 150% |
| 土地権利 | 所有権 |
| 接道方向_1 | 東 |
| 物件接道間口_1 | 4 |
| 接道種別_1 | 私道 |
| 接道幅員_1 | 4 |
| 建物構造 | 木造 |
|---|---|
| 建物面積・専有面積 | 84.68㎡ |
| 建物階数(地上) | 2 |
| 築年数 | 1975/10 |
| 新築・未入居 | 中古 |
| 現況 | 空(土地の場合:更地) |
| 引渡/入居時期 | 相談 |
| 取引態様 | 一般 |
| キッチン | ガスコンロ, 三口コンロ, システムキッチン |
|---|---|
| 水回り | 給湯, 追い焚き, 洗髪洗面化粧台, シャワー, 浴室乾燥機, バス・トイレ別, 温水洗浄便座 |
| セキュリティ | TVドアホン |
| 水道ガス | プロパンガス, 井戸, 排水下水 |
| その他設備 | 駐車場有, 出窓, バルコニー |
| 間取部屋数 | 4LDK |
|---|---|
| 間取1 | LDK 15 |
| 間取2 | 和室 6 |
| 間取3 | 洋室 6 |
| 間取4 | 洋室 6 |
| 間取5 | 洋室 4.5 |
| 部屋・建物向き | 東 |
関連物件
VIEW MORE
-
戸建て
御船町木倉 新築平屋建
価格 /35,980,000円
物件名 /御船町木倉 新築平屋建
住所 /上益城郡御船町木倉
間取り / 4LDK
-
戸建て
御船町木倉 ガレージ付き2階建 新築戸建
価格 /36,980,000円
物件名 /御船町木倉 ガレージ付き2階建 新築戸建
住所 /上益城郡御船町木倉
間取り / 3LDK
-
戸建て
東区新外3丁目1期1号棟
価格 /27,980,000円
物件名 /東区新外3丁目1期1号棟
住所 /熊本市東区新外3丁目
間取り / 4LDK
-
戸建て
御船町木倉 新築戸建 3号棟
価格 /31,980,000円
物件名 /御船町木倉 新築戸建 3号棟
住所 /上益城郡御船町木倉
間取り / 4LDK
-
戸建て
御船町木倉 新築戸建 24号棟
価格 /32,980,000円
物件名 /御船町木倉 新築戸建 24号棟
住所 /上益城郡御船町木倉
間取り / 4LDK
-
戸建て
南区富合町大町3期 1号棟
価格 /23,980,000円
物件名 /南区富合町大町3期 1号棟
住所 /熊本市南区富合町大町
間取り / 4LDK